案例分享|銀海泊岸|現代自然風
樸素、愜意,生活本該如此雅致。

案例小區:銀海泊岸
案例風格:現代自然風
面積:110㎡
案例說明:本案例是一個三室兩廳一廚兩衛的戶型,色調上運用了梨木色和白色相搭配,大量木材的使用,整體樸素,質感更強,還原了自然風的場景。各式各樣燈具的使用,為整體的風格氛圍的渲染取到了不少的作用。許多細節方面尤其體現業主的興趣愛好和個性。

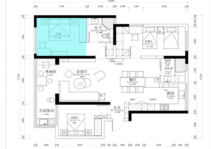
▲戶型圖

▲客廳
燈具的選擇十分考究,為了突出整體的風格,選擇了光線柔和的燈具搭配。為了彌補主燈光線不足而局部光照不夠的問題,加入射燈和燈帶來解決。地毯、沙發和爐火溫暖十足。背景墻上的世界版圖體現業主渴望游歷世界、關注天下事的心境。

▲客餐廳
整體性較強,餐廳、客廳、廚房整體布局規劃,使用上有很好的便利習慣,空間的延伸性更強。開放式的廚房,烤箱、冰箱完美搭配,餐廳顯得簡約樸素。隱藏式的射燈和錯落有致的吊燈交相搭配。

▲衛生間
干濕分離顯得美觀整潔,采光和通風性好,風格上更顯舒雅、端莊。

▲主臥
沒有過多的裝潢,落地吊燈,一大一小,木質的地板和木質的衣柜具有更好的親和力。衣柜有更好的整體性。白色的窗簾為整體的安靜和素雅增加了幾分色彩。


▲次臥
雙人床的布局,實用性更強。在親朋好友來訪時發揮著重要作用,以白色和梨木色相搭配,燈光柔和,有很好的休息體驗,實木的使用還原了自然風的元素。
上一篇: 案例分享山海灣現代風格 下一篇: 案例分享銀海泊岸新中式風格


