建禮家園220㎡的原木色北歐風,朋友都說我很懂生活~~~
案例小區:建禮家園
小區面積:220㎡
風格:原木色北歐風
清新舒適的日式原木 + 北歐風格裝修效果圖,今天這組220㎡復式樓裝修出了理想中的樣子,愜意閑適的生活。喜歡這種風格的業主朋友們,可以收藏參考。
1、儲物間:主要堆放家里平時不太常用的東西,很實用,在空間比較大的情況下可以考慮哦。
2、廚房:開放式廚房,中西餐分開,中間倒臺兼吧臺使用。
3、娛樂室:業主休息的時候喜歡偶爾約上三兩好友一起聚聚打麻將,所以單獨設計娛樂室。
4、花園餐廳:餐廳的兩面墻都是透明玻璃設計,正好可以看見外面的景色,仿佛置身在花園中,在這樣的環境就餐相信胃口也會大增的吧!
5、設備間:主要放置一些大功率設備。
6、下沉庭院:樓梯處下沉式庭院的魅力大概只有親身體會才能感受,涼風陣陣、豐盛美食,在此度過私密舒適的休閑空間,在安逸中充分感受自然。
7、多功能餐廳:除了餐廳以外飄窗旁還有榻榻米設計,約上三五好友聚會真是非常愜意。
8、老人房:考慮到老人行動不方便,所以老人房設計在一樓。
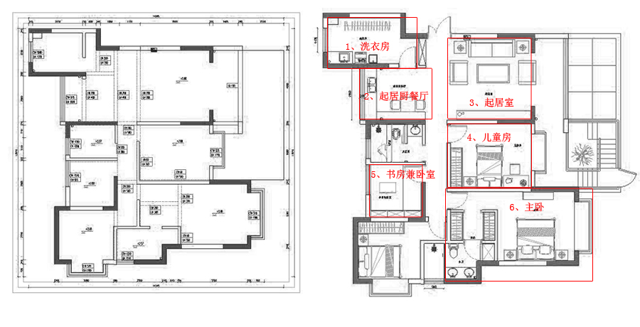
1、洗衣房:單獨選擇一間陽光充足的房子考慮做洗衣房。
2、起居廚餐廳:一樓主要是接待客人朋友,二樓起居室廚餐廳主要是是供一家人使用的地方。
3、起居室:主要是一家人一起聊天,看電視的地方。
4、兒童房:兒童房就是常規布置,當然也要選擇采光好的房間方便學習。
5、書房:書柜加榻榻米設計,書房兼次臥兩用。
6、主臥:主臥常規布置,考慮到女主人異物比較多,所以設計了兩面的衣帽間。

客廳的電視背景墻用的是原木飾面板拼接而成,再擺放一些裝飾品作當點綴就很好看啦~


房主最滿意的地方是廚房!因為雙排櫥柜收納不用怕,島臺的設計也很便于洗切炒,顏值還很高,是自己的風格。

樓梯間采用透光玻璃設計簡單通透,意境不錯~~~

花園外墻也充滿生機地方,讓人瞬間有了活力。
看完這個案例,說明懂生活的人,總能在荒蕪的沙漠中變出綠洲,總能讓平淡的日子開出一朵花來,因為他們不愿意將就,講究生活情趣不是矯揉造作,而是一種感知幸福的能力。


